Bygga altan
Här kan du se vilka handlingar du behöver bifoga med din ansökan och hur ritningarna ska se ut.
Om bygglovet
För en- och tvåbostadshus krävs inget bygglov eller anmälan för att med mur eller plank anordna en skyddad uteplats inom 3,6 meter från bostadshuset. Muren eller planket får inte vara högre än 1,8 meter. Det är också tillåtet att över sådana uteplatser bygga skärmtak. Skärmtaket får, tillsammans med andra bygglovsfria skärmtak på tomten, inte vara större än 15,0 kvadratmeter.
Altanen får inte placeras närmare än 4,5 meter från tomtgränsen om inte grannarna medger det. Riksdagen har även beslutat att sådana altaner ska få strida mot gällande detaljplan eller områdesbestämmelser. Undantaget för altaner ska inte gälla för altaner i anslutning till byggnader och bebyggelseområden som är särskilt värdefulla från historisk, kulturhistorisk, miljömässig eller konstnärlig synpunkt.
Undantag för plank och mur vid en- och tvåbostadshus inom detaljplanelagt område
Det krävs inte bygglov för att med en mur eller ett plank anordna en skyddad uteplats vid ett en- eller tvåbostadshus. För att undantaget från lovplikt ska gälla måste vissa förutsättningar vara uppfyllda:
- Planket eller muren får inte vara högre än 1,8 meter.
- Planket eller muren ska placeras inom 3,6 meter från bostadshuset.
- Åtgärden får inte placeras närmare gränsen än 4,5 meter. Åtgärden får dock placeras närmare gränsen än 4,5 meter om de grannar som berörs medger det.
Undantag för plank och mur vid en- och tvåbostadshus utanför detaljplan
För en- och tvåbostadshus och tillhörande komplementbyggnader får en mur eller ett plank uppföras i omedelbar närhet av bostadshuset. Muren eller planket får inte placeras närmare gränsen än 4,5 meter. Åtgärden får dock vidtas närmare gränsen än 4,5 meter om de grannar som berörs medger det. Undantaget gäller inte om kommunen har bestämt att åtgärden kräver bygglov i detaljplan eller områdesbestämmelser. Det gäller inte heller om åtgärden vidtas inom en sammanhållen bebyggelse och bygglov behövs med hänsyn till omfattningen av byggnadsverk i bebyggelsen.
Ansökan
Du ansöker via e-tjänst.
E-tjänster - bygga nytt, bygga om eller riva
Fackmässiga ritningar
Ritningarna som bifogas med ansökan ska vara:
- Skalenliga och måttsatta
- Ritade med datorbaserat verktyg (CAD) eller noggrant med linjal.
- Ritade på vitt olinjerat och orutat papper.
- Svartvita.
- Ritningarna ska innehålla skallinjal och ritningshuvud.
Fasadritning skala 1:100
Fasadritningar visar byggnadens fasader sedda rakt framifrån. Förutom att visa fasadens utse ende visar de marknivån, viktiga mått samt vilka material och kulörer som ska användas. Vid en bygglovsprövning är det viktigt att se hur altanen passar in i sitt sammanhang. Redo visa fasadritningar från alla relevanta väderstreck med altanen inritad.
Fasadritningarna redovisas i skala 1:100 och ska innehålla, namn på fasad efter väderstreck, altan med mått, material och kulörbeskrivning, marknivå från tomtgräns (TG) till tomtgräns och streckad linje som visar tidigare marknivå om den ändras, skallinjal samt ritningshuvud.
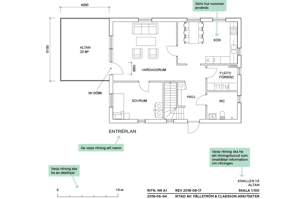
Planritning skala 1:100
Planritningen är ett horisontellt snitt genom huset. Den visar planlösningen och sambandet mellan huset och altanen. Vid nybyggnad gäller de krav på tillgänglighet som anges i Boverkets byggregler.
Planritningen redovisas i skala 1:100 och ska innehålla altan med mått, rumsbeteckningar, öppningsmått för nya dörrar, tillgänglighet med rullstol för mindre altaner (visas med vändcirklar med 1,3 m diameter), skallinjal samt ritningshuvud.
Ritning nuvarande utseende
Fasad- och planritningar som visar hur huset ser ut idag. Ritningarna behöver inte vara skalenliga. I samhällsplaneringskontorets arkiv finns ritningar från tidigare bygglov sparade och dessa går ofta bra att använda sig av. Kontakta Samhällsbyggnadskontoret, samhallsplaneringskontoret@nassjo.se, och uppge aktuell fastighetsbeteckning samt vilka handlingar du behöver. Är det ett större antal handlingar kan administrationen be dig komma till samhällsplaneringskontoret för att själv ta fram önskat material.
Situationsplan skala 1:400 eller 1:500
En situationsplan innehåller detaljerad information om tomten/fastigheten och visar var altanen är placerat i förhållande till tomtgränser och övriga byggnader. Det är viktigt att placeringen och måttsättningen är korrekt.
Situationsplanen redovisas i skala 1:400 eller 1:500 och ska innehålla altan samt måttsättning till tomtgräns minst två mått som är vinkelräta mot tomtgränsen.
Kartan för situationsplanen kan du hämta i kommunens kartjänst Nässjökartan. Genom att söka på din fastighetsbeteckning får du kartan över tomten/fastigheten som du kan skriva ut i pdf-format.
Nässjökartan Länk till annan webbplats, öppnas i nytt fönster.
Nybyggnadskarta
Ärendet kan behöva kompletteras med en nybyggnadskarta. Handläggaren som prövar ditt ärende tar kontakt med dig och ber dig komplettera med detta. Här kan du läsa mer om vad en nybyggnadskarta är,
Nybyggnadskarta
Handläggning av ärendet
Vi ska handlägga ditt ärende inom 10 veckor. För att vi ska kunna bedöma din ansökan är det viktigt att den är komplett med fackmässiga ritningar. Studera därför exempelritningarna noga för att se vad som ska ingå. Om din ansökan inte är fullständig , kan vi begära komplettering vilket gör att handläggningstiden blir längre
Kontakt
Samhällsplaneringskontoret
0380-51 80 00
samhallsplaneringskontoret@nassjo.se

