Mindre tillbyggnad
Här kan du se vilka handlingar du behöver bifoga med din ansökan och hur ritningarna ska se ut.
- Ansökan
- Fackmässiga ritningar
- Fasadritning skala 1:100
- Planritning skala 1:100
- Sektionsritning skala 1:100
- Ritning nuvarande utseende
- Situationsplan skala 1:400 eller 1:500
- Nybyggnadskarta
- Förslag till kontrollplan
- Kontrollansvarig (KA)
- Energiberäkning och redovisning av u-värden
- Handläggning av ärendet
Ansökan
Du ansöker via e-tjänst.
E-tjänster - bygga nytt, bygga om eller riva
Fackmässiga ritningar
Ritningarna som bifogas med ansökan ska vara:
- Skalenliga och måttsatta
- Ritade med datorbaserat verktyg (CAD) eller noggrant med linjal.
- Ritade på vitt olinjerat och orutat papper.
- Svartvita.
- Ritningarna ska innehålla skallinjal och ritningshuvud.
Fasadritning skala 1:100
Fasadritningar visar byggnadens fasader sedda rakt framifrån. Förutom att visa fasadens utseende visar de marknivån, viktiga mått samt vilka material och kulörer som ska användas.
Fasadritningarna redovisas i skala 1:100 och ska innehålla, Namn på fasad efter väderstreck, material och kulörbeskrivning, marknivå från tomtgräns (TG) till tomtgräns och streckad linje som visar tidigare marknivå om den ändras, skallinjal samt ritningshuvud
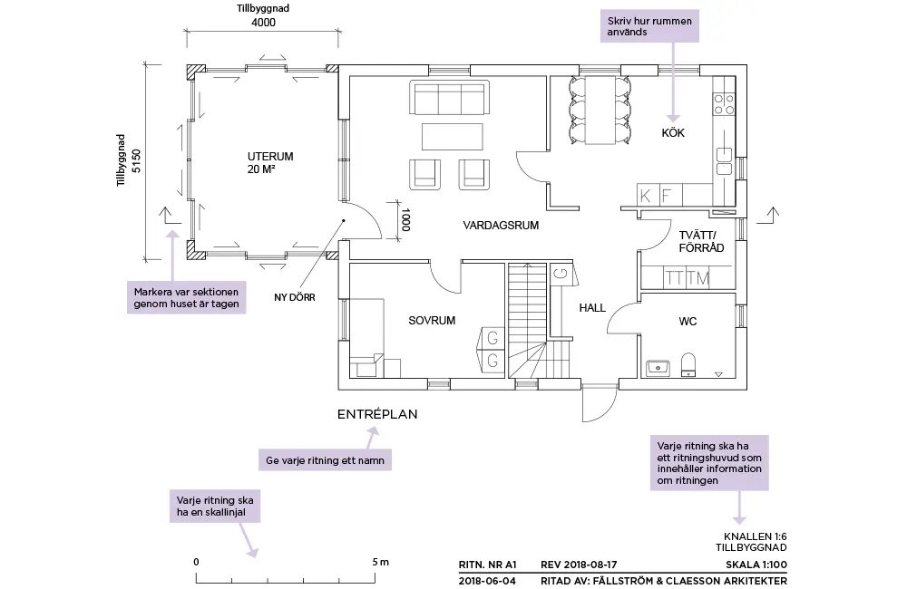
Planritning skala 1:100
Planritningen är ett horisontellt snitt genom huset. Den visar planlösningen och hur rummen ska användas. Ska tillbyggnaden användas som komplementbostadshus ska planritningen visa hur huset kan möbleras enligt tillgänglighetskraven i Boverkets byggregler.
Planritningen redovisas i skala 1:100 och ska innehålla tillbygnad med mått, fast inredning, öppningsmått för dörrar, rumsbeteckningar, tillgänglighet med rullstol i mindre utrymmen (visas med vändcirklar med 1,3 m diameter), takutsprång om det är över 50 cm (ritas med prickstreckad linje), sektionsmarkering, skallinjal samt ritningshuvud.
Sektionsritning skala 1:100
Sektionsritningen är ett vertikalt snitt genom huset. Den visar våningsplan, rumshöjder och taklutning och behövs för att kunna bedöma tillbyggnaden utifrån gällande bestämmelser. Sektionsritningen är också viktig för att förstå hur tillbyggnaden förhåller sig till den befintliga byggnaden.
Sektionsritningen redovisas i skala 1:100 och ska innehålla befintlig byggnad, tillbyggnad, nockhöjd, takfotshöjd, takvinkel, rumshöjd, redovisning av eventuell nivåskillnad i golv, marklinje, skallinjal samt ritningshuvud.
Ritning nuvarande utseende
Fasad- och planritningar som visar hur huset ser ut idag. Ritningarna behöver inte vara skalenliga. I samhällsplaneringskontorets arkiv finns ritningar från tidigare bygglov sparade och dessa går ofta bra att använda sig av. Kontakta Samhällsbyggnadskontoret, samhallsplaneringskontoret@nassjo.se, och uppge aktuell fastighetsbeteckning samt vilka handlingar du behöver. Är det ett större antal handlingar kan administrationen be dig komma till samhällsplaneringskontoret för att själv ta fram önskat material.
Situationsplan skala 1:400 eller 1:500
En situationsplan innehåller detaljerad information om tomten/fastigheten och visar var tillbyggnaden är placerad i förhållande till tomtgränser och övriga byggnader. Det är viktigt att placeringen och måttsättningen är korrekt.
Situationsplanen redovisas i skala 1:400 eller 1:500 och ska innehålla tillbyggnad, färdig golvhöjd (FG, samt måttsättning till tomtgräns med minst två mått som är vinkelräta mot tomtgränsen.
Kartan för situationsplanen kan du hämta i kommunens kartjänst Nässjökartan. Genom att söka på din fastighetsbeteckning får du kartan över tomten/fastigheten som du kan skriva ut i pdf-format.
Nässjökartan Länk till annan webbplats, öppnas i nytt fönster.
Nybyggnadskarta
Ärendet kan behöva kompletteras med en nybyggnadskarta. Handläggaren som prövar ditt ärende tar kontakt med dig och ber dig komplettera med detta. Här kan du läsa mer om vad en nybyggnadskarta är,
Nybyggnadskarta
Förslag till kontrollplan
Kontrollplanen är ett dokument som beskriver vilka kontroller som ska göras under byggnationen. I kontrollplanen ska det bland annat stå vad som ska kontrolleras, på vilket sätt kontrollerna görs och vad kontrollresultatet ska jämföras mot. Det ska också framgå vem som ska utföra kontrollerna. I enklare ärenden kan du själv ta fram en kontrollplan.
Kontrollansvarig (KA)
Kontrollansvarig kan behövas beroende på hur komplicerat och stort lagstiftningen följs i ditt byggprojekt, bland annat genom att hjälpa dig att ta fram ett förslag till kontrollplan och se till att kontrollplanen följs. En KA ska vara certifierad och ha självständig ställning, vilket innebär att denne inte får vara släkt med eller arbeta på samma företag som den som bygger. Du kan själv hitta certifierade KA på Boverkets webbplats. Tänk på att du måste kontakta KA före du anmäler denna i ditt ärende.
Energiberäkning och redovisning av u-värden
Energiberäkningen ska beskriva husets energianvändning, exklusive hushållsel. Med husets energianvändning menas byggnadens uppvärmning, tappvarmvatten och andra installationer såsom fläktar och motorer. U-värden redovisas för respektive byggnadsdel på tillbyggnaden.
Handläggning av ärendet
Vi ska handlägga ditt ärende inom 10 veckor. För att vi ska kunna bedöma din anmälan är det viktigt att den är komplett med fackmässiga ritningar. Studera exempelritningarna noga för att se vad som ska ingå. Om din ansökan inte är fullständig kan vi begära komplettering.
Kontakt
Samhällsplaneringskontoret
0380-51 80 00
samhallsplaneringskontoret@nassjo.se


