Glasa in balkong
Här kan du se vilka handlingar du behöver bifoga med din ansökan och hur ritningarna ska se ut.
Om bygglovet
lnglasning av balkong räknas som en tillbyggnad, och därför krävs alltid bygglov. På vissa hus kan det vara olämpligt att glasa in balkonger med hänsyn till husets arkitektur och kulturhistoriska värde. En inglasad balkong ska vara anpassad till byggnaden vad gäller färg, form, material och detaljutformning. lnglasningen måste också utformas med hänsyn till brandskyddskraven i Boverkets byggregler. Information finns på Boverkets webbplats.
Ansökan
Du ansöker via e-tjänst.
E-tjänster - bygga nytt, bygga om eller riva
Fackmässiga ritningar
Ritningarna som bifogas med ansökan ska vara:
- Skalenliga och måttsatta
- Ritade med datorbaserat verktyg (CAD) eller noggrant med linjal.
- Ritade på vitt olinjerat och orutat papper.
- Svartvita.
- Ritningarna ska innehålla skallinjal och ritningshuvud.
Fasadritning skala 1:100
Fasadritningar visar byggnadens fasader sedda rakt framifrån. Här visar du vilken balkong du vill glasa in. Vid en bygglovsprövning är det viktigt att se hur balkongen passar in i sitt sammanhang. Därför är det viktigt att ritningen visar detaljer som till exempel indelningar av glaset och andra synliga delar på ett korrekt sätt. Redovisa fasader mot alla relevanta väderstreck
Fasadritningarna redovisas i skala 1:100/ 1:200 och ska innehålla namn på fasad efter väderstreck, material- och kulörbeskrivning, marknivå från tomtgräns (TG) till tomtgräns, skallinjal samt ritningshuvud.
Ritning nuvarande utseende
Fasad- och planritningar som visar hur huset ser ut idag. Ritningarna behöver inte vara skalenliga. I samhällsplaneringskontorets arkiv finns ritningar från tidigare bygglov sparade och dessa går ofta bra att använda sig av. Kontakta Samhällsbyggnadskontoret, samhallsplaneringskontoret@nassjo.se, och uppge aktuell fastighetsbeteckning samt vilka handlingar du behöver. Är det ett större antal handlingar kan administrationen be dig komma till samhällsplaneringskontoret för att själv ta fram önskat material.
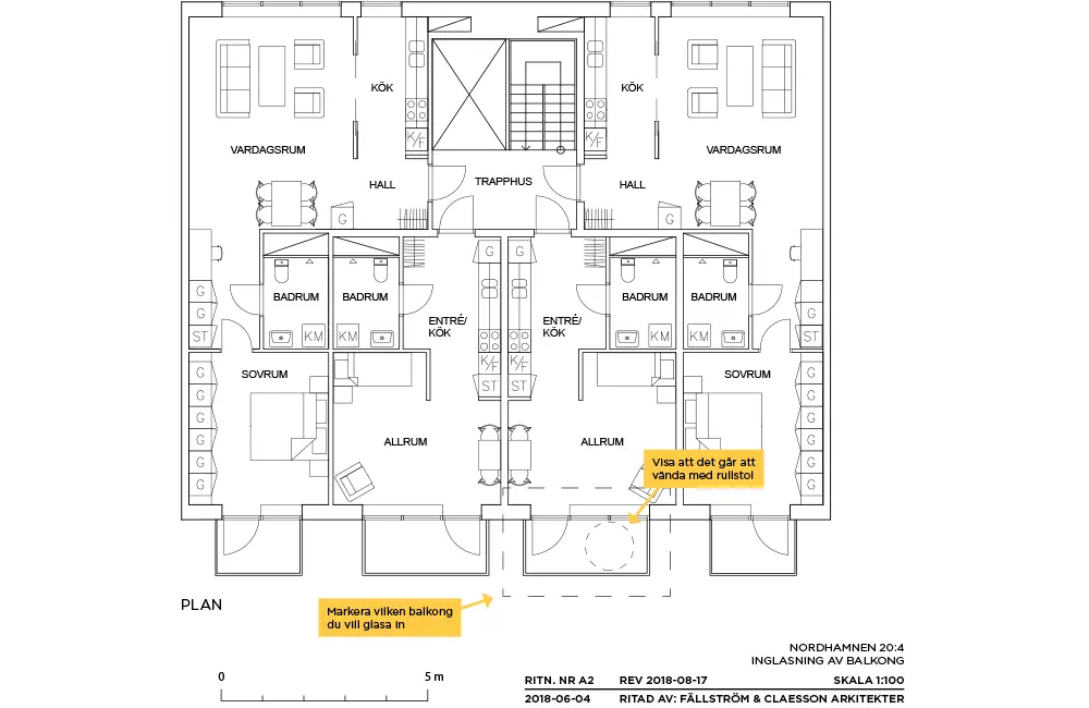
Planritning skala 1:100
Planritningen är ett horisontellt snitt genom huset. Den visar planlösningen och sambandet mellan lägenheten och balkongen.
Planritningen redovisas i skala 1:100 och ska innehålla tydlig markering av aktuell balkong, rumsbeteckningar, tillgänglighet med rullstol (visas med vändcirkel med 1,3 m diameter), skallinjal samt ritningshuvud.
Förslag till kontrollplan
Kontrollplanen är ett dokument som beskriver vilka kontroller som ska göras under byggnationen. I kontrollplanen ska det bland annat stå vad som ska kontrolleras, på vilket sätt kontrollerna görs och vad kontrollresultatet ska jämföras mot. Det ska också framgå vem som ska utföra kontrollerna. Den som själv bygger eller beställer byggnadsarbete (så kallad byggherre) ska med stöd av den kontrollansvarige, ta fram ett förslag till kontrollplan.
Konstruktionsritning och teknisk beskrivning
Byggprojektets tekniska lösningar och viktiga byggnadsdetaljer ska antingen visas i konstruktionsritningar eller beskrivas i en teknisk beskrivning.
Kontrollansvarig (KA)
Kontrollansvarig kan behövas beroende på hur komplicerat och stort lagstiftningen följs i ditt byggprojekt, bland annat genom att hjälpa dig att ta fram ett förslag till kontrollplan och se till att kontrollplanen följs. En KA ska vara certifierad och ha självständig ställning, vilket innebär att denne inte får vara släkt med eller arbeta på samma företag som den som bygger. Du kan själv hitta certifierade KA på Boverkets webbplats. Tänk på att du måste kontakta KA före du anmäler denna i ditt ärende.
Handläggning av ärendet
Vi ska handlägga ditt ärende inom 10 veckor. För att vi ska kunna bedöma din ansökan är det viktigt att den är komplett med fackmässiga ritningar. Studera därför exempelritningarna noga för att se vad som ska ingå. Om din ansökan inte är fullständig , kan vi begära komplettering vilket gör att handläggningstiden blir längre.
Kontakt
Samhällsplaneringskontoret
0380-51 80 00
samhallsplaneringskontoret@nassjo.se
