Bygga komplementbyggnad
Här kan du se vilka handlingar du behöver bifoga med din ansökan och hur ritningarna ska se ut.
Om bygglovet
En byggnad vars funktion utgör ett komplement till ett en- eller tvåbostadshus kallas för komplementbyggnad. Det kan till exempel vara ett garage, ett förråd eller ett rum för övernattning.
För en komplementbyggnad krävs bygglov. I vissa fall är det dock möjligt att bygga ett så kallat attefallshus eller en friggebod utan bygglov. För ett attefallshus krävs att du gör en anmälan om bygglovsbefriad åtgärd till samhällsplaneringskontoret och får ett startbesked innan du börjar.
Ansökan
Du ansöker via e-tjänst.
E-tjänster - bygga nytt, bygga om eller riva
Fackmässiga ritningar
Ritningarna som bifogas med ansökan ska vara:
- Skalenliga och måttsatta
- Ritade med datorbaserat verktyg (CAD) eller noggrant med linjal.
- Ritade på vitt olinjerat och orutat papper.
- Svartvita.
- Ritningarna ska innehålla skallinjal och ritningshuvud.
Fasadritning skala 1:100
Fasadritningar visar byggnadens fasader sedda rakt framifrån. Förutom att visa fasadens utse ende visar de marknivån, viktiga mått samt vilka material och kulörer som ska användas. Vid en bygglovsprövning är det viktigt att se hur komplementbyggnaden passar in i sitt sammanhang. Redovisa fasader mot fyra väderstreck.
Fasadritningarna redovisas i skala 1:100 och ska innehålla namn på fasad efter väderstreck, material- och kulörbeskrivning, marknivå från tomtgräns (TG) till tomtgräns och streckad linje som visar tidigare marknivå om den ändras, skallinjal samt ritningshuvud.
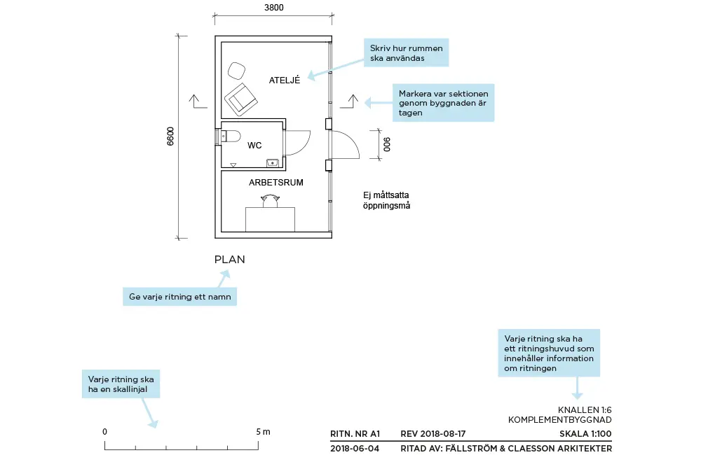
Planritning skala 1:100
Planritningen är ett horisontellt snitt genom komplementbyggnaden. Den visar planlösningen och hur rummen ska användas.
Planritningen redovisas i skala 1:100 och ska innehålla: attefallshus med utvändiga mått, fast inredning och möblering, öppningsmått för dörrar, rumsbeteckningar, takutsprång om det är över 50 cm (ritas med prick-streckad linje), sektionsmarkering, skallinjal samt ritningshuvud. Om komplementbyggnaden ska användas som bostad ska planritningen även innehålla tillgänglighet med rullstol i mindre utrymmen (visas med vändcirklar med 1,3 m diameter).
Sektionsritning skala 1:100
Sektionsritningen är ett vertikalt snitt genom komplementbyggnaden. Den visar bland annat nockhöjd och taklutning och behövs för att kunna bedöma byggnaden utifrån gällande bestämmelser. Sektions ritningen är också viktig för att förstå hur byggnaden förhåller sig till marken.
Sektionsritningen redovisas i skala 1:100 och ska innehålla nockhöjd, takvinkel, redovisning av eventuell nivåskillnad i golv, marklinje, skallinjal samt ritningshuvud.
Situationsplan skala 1:400 eller 1:500
En situationsplan innehåller detaljerad information om tomten/fastigheten och visar var komplementbyggnaden är placerad i förhållande till tomtgränser och övriga byggnader. Det är viktigt att placeringen och måttsättningen är korrekt.
Situationsplanen redovisas i skala 1:400 eller 1:500 och ska innehålla komplementbyggnad, färdig golvhöjd (FG, måttsättning till tomtgräns med minst två mått som är vinkelräta mot tomtgränsen.
Kartan för situationsplanen kan du hämta i kommunens kartjänst Nässjökartan. Genom att söka på din fastighetsbeteckning får du kartan över tomten/fastigheten som du kan skriva ut i pdf-format.
Nässjökartan Länk till annan webbplats, öppnas i nytt fönster.
Nybyggnadskarta
Ärendet kan behöva kompletteras med en nybyggnadskarta. Handläggaren som prövar ditt ärende tar kontakt med dig och ber dig komplettera med detta. Här kan du läsa mer om vad en nybyggnadskarta är,
Nybyggnadskarta
Förslag till kontrollplan
Kontrollplanen är ett dokument som beskriver vilka kontroller som ska göras under byggnationen. I kontrollplanen ska det bland annat stå vad som ska kontrolleras, på vilket sätt kontrollerna görs och vad kontrollresultatet ska jämföras mot. Det ska också framgå vem som ska utföra kontrollerna. I enklare ärenden kan du själv ta fram en kontrollplan.
Handläggning av ärendet
Vi ska handlägga ditt ärende inom 10 veckor. För att vi ska kunna bedöma din anmälan är det viktigt att den är komplett med fackmässiga ritningar. Studera exempelritningarna noga för att se vad som ska ingå. Om din ansökan inte är fullständig kan vi begära komplettering.
Kontakt
Samhällsplaneringskontoret
0380-51 80 00
samhallsplaneringskontoret@nassjo.se


