Attefallshus
Här kan du se vilka handlingar du behöver bifoga med din ansökan och hur ritningarna ska se ut.
- Om anmälan
- Anmälan
- Fackmässiga ritningar
- Fasadritning skala 1:100
- Planritning skala 1:100
- Sektionsritning skala 1:100
- Situationsplan skala 1:400 eller 1:500
- Nybyggnadskarta
- Förslag till kontrollplan
- Konstruktionsritning och teknisk beskrivning
- Godkännande från grannar
- Redovisning av dagvattenhantering
- Redovisning av brandavskiljning mellan byggnader
- Kontrollansvarig (KA)
- Energiberäkning
- Handläggning av ditt ärende
Om anmälan
Ett attefallshus är en bygglovbefriad komplementbyggnad eller komplementbostadshus. För att få bygga en sådan byggnad utan bygglov måste vissa krav vara uppfyllda.
- Arean får vara högst 30 kvadratmeter
- Nockhöjden får vara högst 4 meter
- Takutsprånget får vara högst 0 ,5 meter
- Byggnaden ska placeras minst 4,5 meter från tomtgräns till gata, väg och allmän plats. Mot grannar kan placeringen vara närmare med grannens skriftliga godkännande.
Anmälan
Attefallshuset är bygglovbefriat men det krävs att du gör en anmälan till samhällsplaneringskontoret. Du gör anmälan om ej bygglovspliktig åtgärd via e-tjänst.
E-tjänster - bygga nytt, bygga om eller riva
Fackmässiga ritningar
Ritningarna som bifogas med ansökan ska vara:
- Skalenliga och måttsatta ritade med datorbaserat verktyg (CAD) eller noggrant med linjal.
- Ritade på vitt olinjerat och orutat papper.
- Svartvita.
- Ritningarna ska innehålla skallinjal och ritningshuvud.
Fasadritning skala 1:100
Fasadritningar visar byggnadens fasader sedda rakt framifrån. Förutom att visa fasadens utseende visar de marknivån, viktiga mått samt vilka material och kulörer som ska användas. Redovisa fasader mot fyra väderstreck.
Fasadritningarna redovisas i skala 1:100 och ska innehålla namn på fasad efter väderstreck, material och kulörbeskrivning, marknivå från tomtgräns (TG) till tomtgräns och streckad linje som visar tidigare marknivå om den ändras, skallinjal samt ritningshuvud
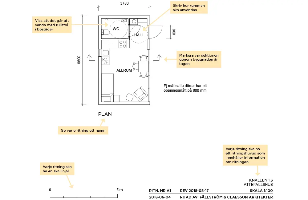
Planritning skala 1:100
Planritningen är ett horisontellt snitt genom attefallshuset. Den visar planlösningen och hur rummen ska användas. Ska attefallshuset användas som komplementbostadshus ska planritningen visa hur huset kan möbleras enligt tillgänglighetskraven i Boverkets byggregler.
Planritningen redovisas i skala 1:100 och ska innehålla: attefallshus med utvändiga mått, fast inredning, öppningsmått för dörrar, rumsbeteckningar, sektionsmarkering, skallinjal samt ritningshuvud. För komplementbostadshus ska planritningen också innehålla möblering, tillgänglighet med rullstol i mindre utrymmen (visas med vändcirklar med 1,3 m diameter).
Sektionsritning skala 1:100
Sektionsritningen är ett vertikalt snitt genom attefallshuset. Den visar bland annat nockhöjd och taklutning och behövs för att kunna bedöma byggnaden utifrån gällande bestämmelser. Sektions ritningen är också viktig för att förstå hur byggnaden förhåller sig till marken.
Sektionsritningen redovisas i skala 1:100 och ska innehålla nockhöjd, takvinkel, redovisning av eventuell nivåskillnad i golv, färdig golvhöjd (FG), marklinje, skallinjal samt ritningshuvud. För komplementbostadshus ska sektionsritningen också innehålla rumshöjd.
Situationsplan skala 1:400 eller 1:500
En situationsplan innehåller detaljerad information om tomten/fastigheten och visar var attefallshuset är placerat i förhållande till tomtgränser och övriga byggnader. Det är viktigt att placeringen och måttsättningen är korrekt.
Situationsplanen redovisas i skala 1:400 eller 1:500 och ska innehålla attefallshus, färdig golvhöjd (FG, måttsättning till tomtgräns minst två mått som är vinkelräta mot tomtgränsen. För komplementbostadshus ska situationsplanen också innehålla möjlig tillgänglig väg från angöringsplats till attefallshus.
Kartan för situationsplanen kan du hämta i kommunens kartjänst Nässjökartan. Genom att söka på din fastighetsbeteckning får du kartan över tomten/fastigheten som du kan skriva ut i pdf-format.
Nässjökartan Länk till annan webbplats, öppnas i nytt fönster.
Nybyggnadskarta
Ärendet kan behöva kompletteras med en nybyggnadskarta. Handläggaren som prövar ditt ärende tar kontakt med dig och ber dig komplettera med detta. Här kan du läsa mer om vad en nybyggnadskarta är,
Nybyggnadskarta
Förslag till kontrollplan
Kontrollplanen är ett dokument som beskriver vilka kontroller som ska göras under byggnationen. I kontrollplanen ska det bland annat stå vad som ska kontrolleras, på vilket sätt kontrollerna görs och vad kontrollresultatet ska jämföras mot. Det ska också framgå vem som ska utföra kontrollerna. I enklare ärenden kan du själv ta fram en kontrollplan.
Konstruktionsritning och teknisk beskrivning
Byggprojektets tekniska lösningar och viktiga byggnadsdetaljer ska antingen visas i konstruktionsritningar eller beskrivas i en teknisk beskrivning. Exempel på tekniska lösningar är grundläggning, bärandestomme, takkonstruktion, brandskydd, uppvärmning, ventilation, energi och säkerhet.
Godkännande från grannar
Om komplementbyggnaden placeras närmre tomtgräns än 4,5 meter måste du få ett skriftligt godkännande från grannen/grannarna som äger fastigheten mot vilken komplementbyggnaden hamnar för nära. Grannen/grannarna ska skriva sin namnteckning och fastighetsbeteckning på samtliga ritningar. Om komplementbyggnaden placeras mer än 4,5 meter från samtliga tomtgränser behövs inget godkännande från grannar.
Redovisning av dagvattenhantering
Redovisning av dagvattenhantering är en beskrivning av hur du tänker ta hand om ditt dagvatten, det vill säga regn- och smältvatten som inte kan tränga ner i marken.
Redovisning av brandavskiljning mellan byggnader
Redovisning av tekniska brandskyddsåtgärder mellan byggnader om avståndet är mindre än 7 meter. Kan ingå i teknisk beskrivning / konstruktionsritning.
Kontrollansvarig (KA)
Kontrollansvarig kan behövas beroende på hur komplicerat och stort lagstiftningen följs i ditt byggprojekt, bland annat genom att hjälpa dig att ta fram ett förslag till kontrollplan och se till att kontrollplanen följs. En KA ska vara certifierad och ha självständig ställning, vilket innebär att denne inte får vara släkt med eller arbeta på samma företag som den som bygger. Du kan själv hitta certifierade KA på Boverkets hemsida. Tänk på att du måste kontakta KA före du anmäler denna i ditt ärende.
Energiberäkning
Energiberäkningen ska beskriva husets energianvändning, exklusive hushållsel. Med husets energianvändning menas byggnadens uppvärmning, tappvarmvatten och andra installationer såsom fläktar och motorer. Energiberäkningen behövs bara om byggnaden ska användas som bostad.
Handläggning av ditt ärende
Vi ska handlägga ditt ärende inom 4 veckor. För att vi ska kunna bedöma din anmälan är det viktigt att den är komplett med fackmässiga ritningar. Studera exempelritningarna noga för att se vad som ska ingå. Om din ansökan inte är fullständig kan vi begära komplettering.
Kontakt
Samhällsplaneringskontoret
0380-51 80 00
samhallsplaneringskontoret@nassjo.se


